Дом 112 М ² - от 6,7 млн ₽
Двухэтажный дом с общей площадью 112,0 м² с 4 спальнями и крыльцом 3,6 м²
Дом подходит для круглогодичного проживания.

Благодаря своему дизайну он выглядит компактным и весьма презентабельным внешне. При этом из внешних особенностей проекта можно выделить окна мансардного этажа, которые повторяют геометрию двускатной крыши.

Проектом предусмотрено четыре спальни. Три на втором этаже и одна на первом. Хотя это и мансардный дом, но места в спальнях второго этажа более чем достаточно. На втором этаже также размещен просторный санузел. Все помещения мансардного этажа соединяет небольшой холл. Лестница расположена таким образом, чтобы с одной стороны обеспечить визуальный простор для холла, а с другой – максимально эффективно использовать площадь второго этажа.
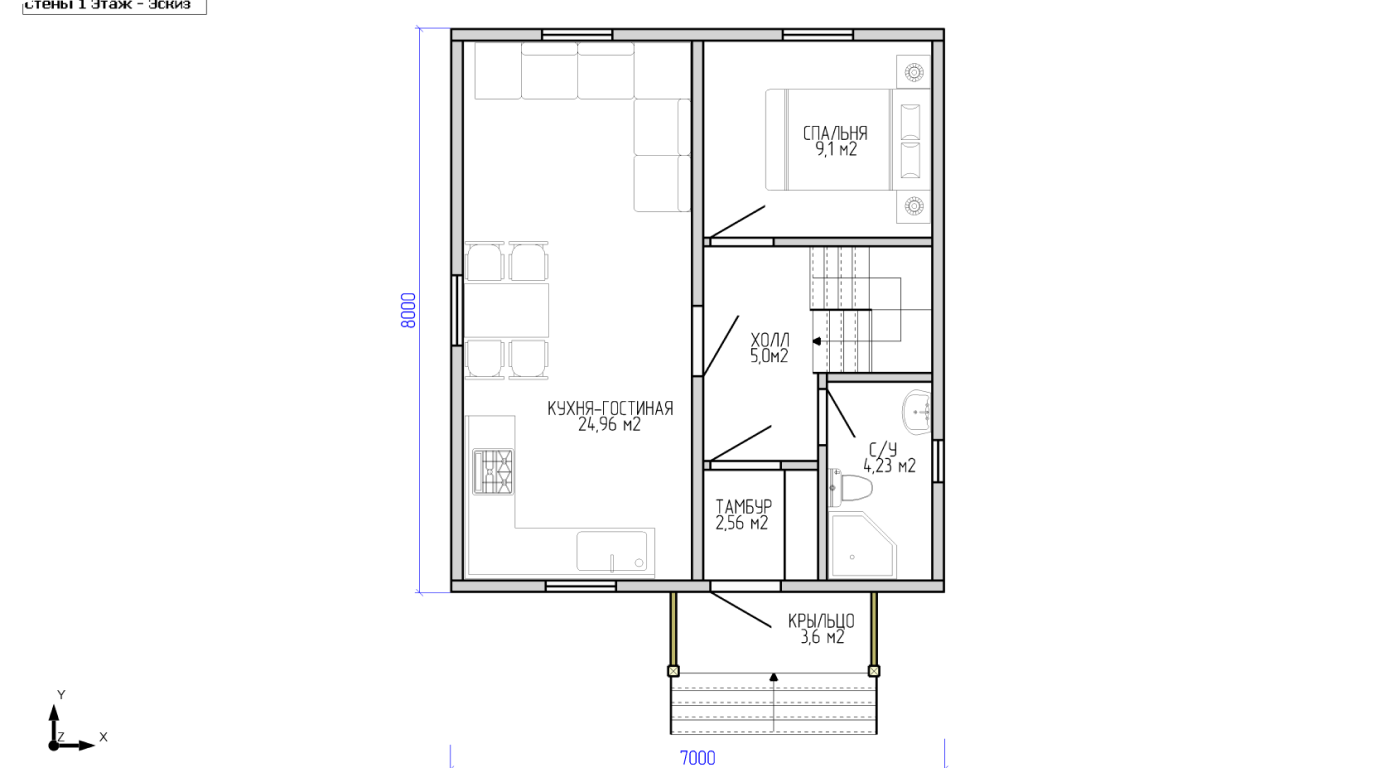
Вход в дом через крытое крыльцо, за ним тамбур, следом идет холл. В холле расположена лестница на второй этаж, а также двери в спальню, санузел и кухню-гостиную. Совмещенная с гостиной кухня продумана также и в плане освещения. Три окна расположены таким образом, чтобы освещать зону готовки, центральную часть помещения и зону отдыха.

Стоимость зависит от материалов внешней отделки дома и инженерных коммуникаций.
Работая с нами, вы получаете:
Бесплатную консультация перед покупкой дома
Помощь в подборе участка
Поддержка при оформлении ипотеки
Соблюдение СНиП (строительных норм и правил) и ГОСТ
Использование качественных современных материалов
Гарантированные сроки выполнения работ
Сопровождение от начала и до конца сделки
Гарантии на наши услуги
любые ипотечные программы от сбера и россельхоз банка
Кредит на покупку дома:
6 000 000 руб
Сроком до 30 лет
Возраст от 18 лет
любые ипотечные программы от сбера и россельхоз банка
Кредит на покупку дома:
6 000 000 руб
Сроком до 30 лет
Возраст от 18 лет
Контакты
692919, г. Находка,
ул. Находкинский проспект, д. 5в ст. 2
2024. © ТеонСтрой. Все права защищены
teonstroy@mail.ru
ИНН 2508111219