Дом 84,3 м²- от 5,8 млн ₽
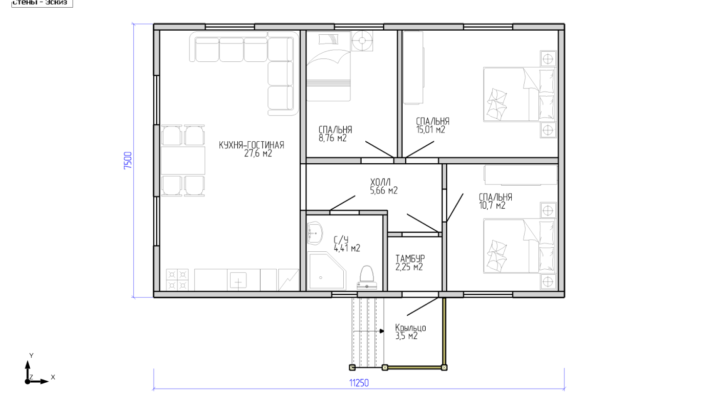
Одноэтажный дом с общей площадью 84,3 м², с 3 спальнями и небольшим крыльцом площадью 3,5 м²
Дом подходит для круглогодичного проживания.

Достаточно просторный, функциональный и удобный дом без каких-то лишних изысков. При максимальной архитектурной простоте, он имеет очень элегантный внешний вид. При входе в дом небольшой тамбур, за ним – холл. Из холла двери в три спальни и санузел. Кухня примыкает к санузлу и таким образом уменьшается длина коммуникаций. В гостиной предусмотрено 3 окна, что делает помещение очень светлым и просторным. В каждой спальне также спроектировано по одному окну.

Стоимость зависит от материалов внешней отделки дома и инженерных коммуникаций.
Работая с нами, вы получаете:
Бесплатную консультация перед покупкой дома
Помощь в подборе участка
Поддержка при оформлении ипотеки
Соблюдение СНиП (строительных норм и правил) и ГОСТ
Использование качественных современных материалов
Гарантированные сроки выполнения работ
Сопровождение от начала и до конца сделки
Гарантии на наши услуги
любые ипотечные программы от сбера и россельхоз банка
Кредит на покупку дома:
6 000 000 руб
Сроком до 30 лет
Возраст от 18 лет
любые ипотечные программы от сбера и россельхоз банка
Кредит на покупку дома:
6 000 000 руб
Сроком до 30 лет
Возраст от 18 лет
Контакты
692919, г. Находка,
ул. Находкинский проспект, д. 5в ст. 2
2024. © ТеонСтрой. Все права защищены
teonstroy@mail.ru
ИНН 2508111219